Ribble

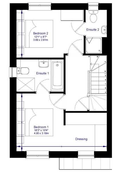
This two bed semi detached house has two car parking spaces and an east facing garden. Ground floor comprises of open plan kitchen diner with separate living room and w/c. Upstairs comprises of master bedroom with ensuite and dressing area with a further double bedroom with ensuite.

 


Plot No : 80

No.Of Bedrooms : 2

Car Parking : 2 car parking spaces

Size : 816 Sq Ft

Available

Pricing : £227,950

Kitchen

Quality kitchens are installed by Symphony with a choice of doors, worktops and layouts.  As standard, we will install a single oven, integrated fridge freezer, dishwasher usually supplied by Zanussi plus under cupboard lighting and soft close doors.  For further information please speak to our sales team

Bathrooms

All bathrooms are installed with contemporary white sanitary with chrome fittings and will be tiled with a choice of tiles.

For further information please speak to our sales team.

 

Heating

Gas fired central heating system incorporating an energy efficient boiler.

For further information please speak to our sales team.

Fixtures & Fittings

Bathrooms and kitchens will be tiled with a choice of tiles.

For further information please speak to our sales team.

 

Security

Wiring for alarms available on request.

Connectivity

All properties will be capable of connecting to the BT and Virgin networks

External

Turfed gardens to the front and rear, where appropriate with rear boundary fences and patio.

Warranty

A 10 year warranty will be provided by Checkmate.

Register to Reserve This Plot